
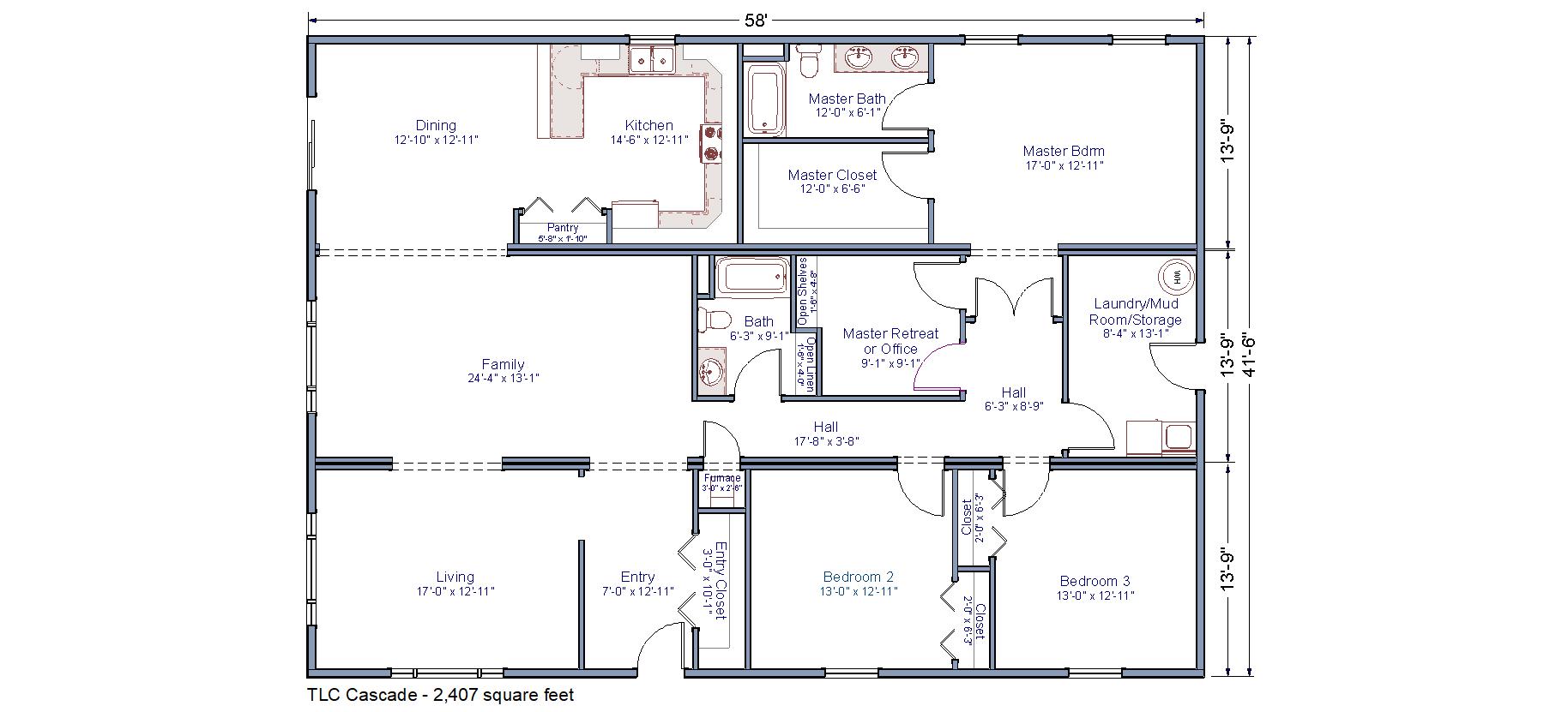
The Cascade Modular Home is a spacious single-story residence spanning 2,407 square feet. It offers three bedrooms and two bathrooms, as well as plenty of windows that flood the living, dining, and kitchen areas with natural light. The home boasts an expansive kitchen, a luxurious master suite with the option of a master retreat, a formal entryway, and a sizable laundry/utility room with an outside entrance. The Cascade floor plan is perfect for hosting large gatherings and events. Click here for a Printable Flyer.
We invite you to explore our other options which are over 2,000 square feet here. At TLC Modular Homes, we have a variety of home plans to accommodate everyone’s preferences. Consequently, you can customize any of our house plans to fit your needs.
Additionally, we invite you to take a tour of our factory, situated in the scenic town of Goldendale, Washington. Please contact us today at (509)773-5055 or email us at sales@tlcmodularhomes.com for more information.
Follow us on Facebook to stay up to date on our homes.
