
Are you in search of a roomy modular home that combines elegance, coziness, and seclusion? Your quest ends here at TLC Modular Homes. Our Spokane model is tailored to your needs.
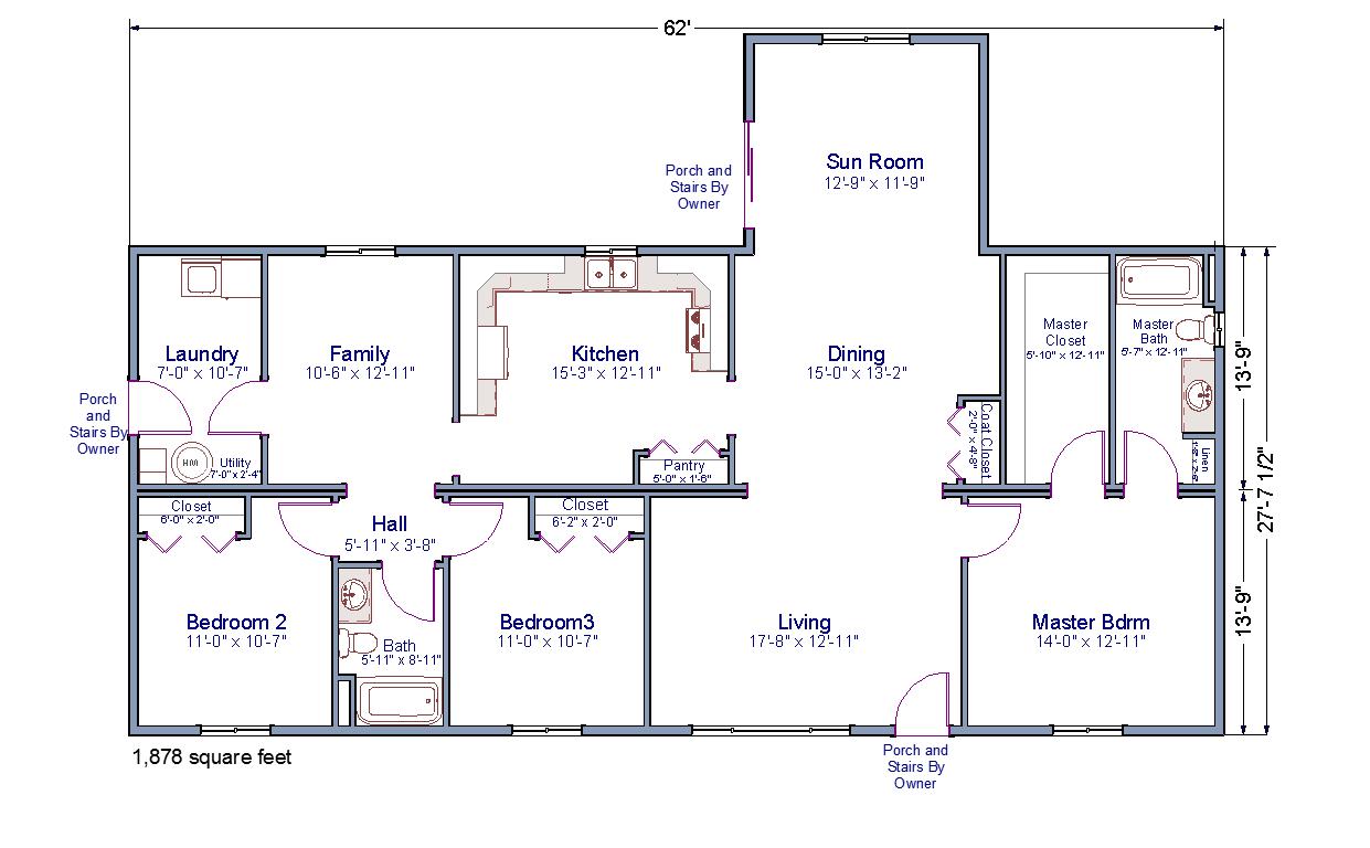
Looking for a roomy and versatile living space that can accommodate your family? The Spokane Modular Home is the perfect solution for you. Its open and breezy arrangement, coupled with a privately situated Master en suite, provides the ideal setting for relaxation and comfort. Offering an impressive 1,878 square feet of living area, this home allows you to easily adjust to any changes in your lifestyle needs. Click on this link for a Printable Flyer.
Our Design team is skilled and ready to customize any of our ranch designs to meet your needs. Take a look at our other Ranch floor plans to discover more options here.
To learn more about Spokane, contact our office today via phone at (509) 773-5055 or email us at sales@tlcmodularhomes.com. For even more information, be sure to visit our Facebook page here.
